Гардеробная как стандарт: выбираем квартиру для жительницы большого города с коллекцией из 120 туфелек
Мы решили посмотреть на мечту прагматично и выбрали несколько функциональных планировок с гардеробными в разных жилых комплексах девелопера MR. А затем попросили нейросеть оценить варианты с точки зрения современной москвички. Одно из условий — в гардеробном пространстве должно хватить места для легендарных 120 пар туфель.
ОНЕ. Инженерное решение как база для дизайнера
Премиум-класс в «Москва-Сити»

Дано: 1-комнатная квартира — 54 кв. м, цена — 68 млн руб.
Как организация инженерии может добавить ценности малогабаритному жилью? Смотрим на примере этого лота.
Проектировщики разместили кухню, санузел и ванную вокруг инженерного ядра, освободив остальное пространство квартиры от излишних коммуникаций.
Гардеробная стала инженерным буфером между входной зоной и жилым пространством. Ее обустроили в отдельном техническом узле, где можно не только организовать систему хранения, но и разместить стиральную и сушильную машины, другую бытовую технику.
«Идеальная база для дизайнера! Никаких коробов и трасс. Стены как чистый холст. Можно творить без ограничений! Я бы здесь развернулась», — резюмирует нейро-москвичка.
Внушительные размеры помещения для хранения удовлетворят потребности любого человека. Войдет все, что потребуется, включая богатое собрание туфель. К тому же проектировщики предложили сделать дополнительную встроенную гардеробную в холле при входе.
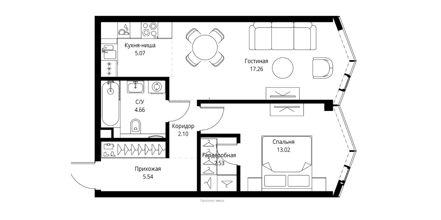
МИРА. Эргономика для личной жизни
Премиум-класс на проспекте Мира

Дано: 1-комнатная квартира — 50 кв. м, цена — 37,2 млн руб. (9% скидка при 100% оплате и ипотеке)
В премиальном доме МИРА мы намеренно остановились на компактных вариантах. Здесь есть точность во всем — в пропорциях, сценариях, логике движения.
Прихожая площадью чуть более 5 кв. м становится буфером между «уличным» и «домашним». За счет глубины входной зоны организована полноценная система хранения верхней одежды и крупногабаритных вещей.
«Идеально! Все максимально оставим при входе — пусть гостиная будет полна света и свободна от лишних подробностей!» — такую оценку дает планировке искусственный интеллект.
Кухня-ниша гармонично взаимодействует с гостиной. Рабочий треугольник выверен, маршрут «приготовление — сервировка — уборка» логичен и удобен. Но современный женский взгляд отмечает иное:
«Важно, что вся эта кухонная история максимально скрыта от глаз. При входе взгляд проходит сначала гостиную, затем обеденную группу и только потом появляются плита и раковина. Браво проектировщикам!»
Главная находка — приватная гардеробная в мастер-спальне. Редкость для небольшого метража. Здесь предусмотрено место для верхней одежды, сезонного хранения, продуманная высота полок и логика развески под разные сценарии жизни.
Если считать по классике: на одну пару обуви требуется в среднем 0,25 м полки. Даже при компактной конфигурации здесь легко разместятся все 120 пар — и останется пространство для новых коллекций. Идеальная планировка для личной жизни без компромиссов.
ВЕЕР. Квартира с архитектурным подходом
Бизнес-класс в Можайском районе

Дано: 2-комнатная квартира — 77,1 кв. м, цена — 42,4 млн рублей (скидка 15% при 100% оплате или ипотеке)
Площадь квартиры в комплексе ВЕЕР сразу заявляет о статусе.
«Она как архитектурная композиция — есть четкая логика, где общественное, а где приватное. Очень тонкое решение», — получаем оценку ИИ.
Здесь нет случайных ходов — видна иерархия использования пространства. Общественный центр — 40-метровая кухня-столовая в духе европейской школы проектирования. Линейная кухня вдоль стены сохраняет свободным центр, позволяя пространству «дышать». Это место для вечеринок, разговоров и бокала вина с подругами.
Спальня изолирована от гостиной холлом и не просматривается из общественной зоны — базовый принцип статусного жилья: приватное не экспонируется.
Системы хранения предусмотрены при входе, в холле и спальне. Они интегрированы в архитектуру, а не навешены на стены. В современном мире продуманная система хранения — маркер класса. Она освобождает пространство от хаоса и переводит его в категорию управляемой среды.
Здесь 120 пар туфель уже не выглядят вызовом. Скорее — достойным наполнением гардеробной, которая выдержит не только Manolo Blahnik, но и сезонные обновления.
СИТИДЗЕН. Компромисс между чувствами и рациональностью
Бизнес-класс в Покровском-Стрешневе

Дано: 2-комнатная квартира — 56,6 кв. м , цена — 28,9 млн руб.
В этой квартире сочетаются выразительная архитектурная пластика и зрелая рациональность планировки. Изюминка — полукруглая стена с панорамным остеклением в зоне спальни и гостиной.
«Сколько солнца и воздуха! Какие виды! Место для творческого вдохновения и мечтаний», — эмоционально выдает нейросеть.
Кухня-гостиная площадью 17 кв. м могла бы быть больше — за счет гардеробной. Но проектировщики сознательно выбрали структурирование и функциональность.
Еще один плюс — две идентичные по площади спальни с возможностью встроенного хранения. Гардеробные по 2,30 кв. м дополнительно разгружают жилые пространства.
С математической точки зрения 2,30 кв. м — это около 9–10 погонных метров полок при грамотной конфигурации. Даже если половину отдать под одежду, обувной коллекции хватит места. Вопрос не «поместятся ли?» смело меняем на «как красиво их расставить?».
«Современная квартира — это не метраж, а сценарий. Не количество комнат, а качество их взаимосвязи. Секрет хорошей квартиры — понять логику движения и центр пространственного притяжения. Тогда компактная квартира становится функциональной, а большая наполняется содержанием, как голливудский фильм», — подытоживает ИИ.
Итак, сколько туфелек поклонниц Кэрри Брэдшоу поместится в гардеробную от MR?
Ответ прост: все 120.
Но главное — не количество полок, а то, что за ними стоит. В хорошей планировке есть место не только для обуви, но и для личной жизни, вдохновения и новых историй. А значит, Кэрри бы одобрила.
Все планировки разработаны студией «Уютная квартира».
Наталья Преображенская, дизайнер интерьеров:
«Мечта о собственной гардеробной в квартире Кэрри Брэдшоу воплощается в современных проектах девелопера MR, где пространство для хранения становится не только решением практических задач, но и элементом, который гармонично вписывается в общий интерьер, поддерживая эстетическую целостность и функциональность».